Montaigne – Paris VIII°

Minimal

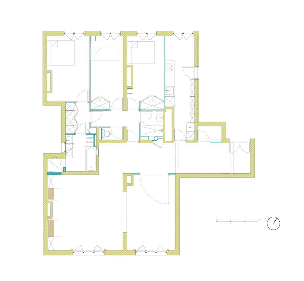
Dans un immeuble des années 60 aux larges baies, ce grand appartement met a profit les vues et la lumière naturelle.
Pour ce pied à terre parisien, les clients étrangers ont souhaité des espaces fluides et fonctionnels.

Certaines cloisons sont abattues pour que la lumière pénètre au cœur de l’appartement.

Le choix restreint des matériaux et les lignes sobres des aménagements sont un cadre volontairement minimal pour mettre en valeur les meubles et les objets glanés au cours de voyages.

Réhabilitation d’un appartement parisien

Lieu
avenue Montaigne, Paris VIIIe

Infos

Année : 2017
Maîtrise d’ouvrage : privée
Surface : 122 m2