Portfolio
Sous les toits
Les espaces hétéroclites provenant d’anciennes chambres de bonnes, des combles et d’une cage d’escalier sont rassemblés aux derniers niveaux d’un immeuble du XVIIIème siècle à Paris dans le neuvième arrondissement pour la création d’un appartement en duplex.
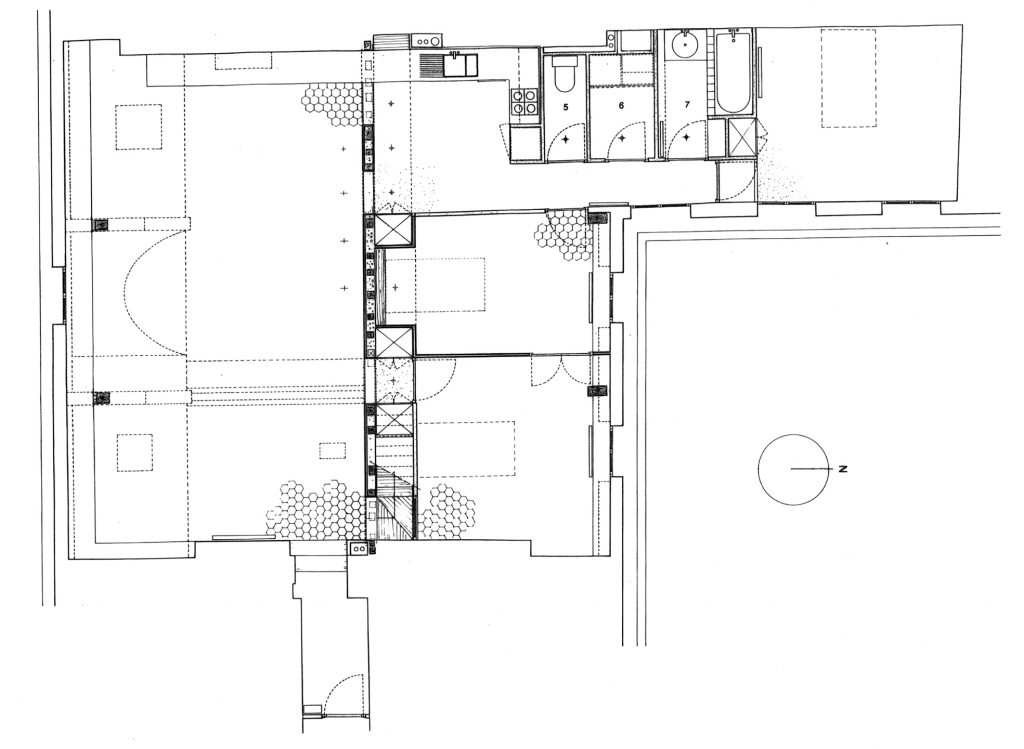
Le premier niveau en L s’ouvre sur le séjour.
Habillant le mur de refend central, un long meuble de chêne structure cet espace en accueillant diverses fonctions : rangements, cimaise pour tableaux et escalier montant à l’étage.
A ce niveau, où se trouvent les pièces communes et les chambres des enfants, la faible hauteur sous plafond est compensée par un dégagement vertical dans le séjour qui permet de lire la charpente jusqu’au toit.
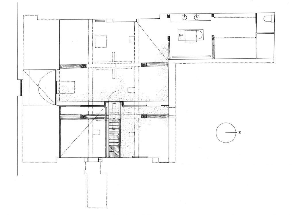
L’espace des parents se développe sur la totalité de l’étage supérieur. Dans la continuité de la chambre, la salle de bain se loge sous un appentis.
L’espace des parents se développe sur la totalité de l’étage supérieur. Dans la continuité de la chambre, la salle de bain se loge sous un appentis.
La gamme de matériaux est restreinte, elle est déclinée en écho aux toitures parisiennes : le bois et le zinc qui habille le plan de travail et la crédence de la cuisine.
Le sol du séjour est revêtu des carreaux de Beauvais récupérés au cours de la démolition. Dans les autres pièces le sol est revêtu d’un béton vernis.
Le sol du séjour est revêtu des carreaux de Beauvais récupérés au cours de la démolition. Dans les autres pièces le sol est revêtu d’un béton vernis.
Création d’un duplex dans un immeuble du XVIIIème siècle
Lieu
rue Bleue, Paris IX
Infos
Maîtrise d’ouvrage : privée
Budget : 150 000 € ht
SU : 200 m2