Portfolio
Tranche
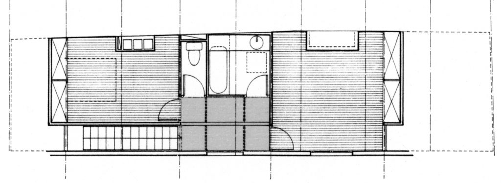
Attenante au corps de logis principal d’une ferme du Pays de Gex à Segny (Ain), l’ancienne grange s’appuie sur son mur en maçonnerie d’un côté et constitue le pignon est de l’autre.
C’est une « tranche » de quatre mètres de largeur sur une quinzaine de mètres de profondeur, dont les façades en bois (structure et bardage) comportent des percements limités.
C’est une « tranche » de quatre mètres de largeur sur une quinzaine de mètres de profondeur, dont les façades en bois (structure et bardage) comportent des percements limités.
C’est dans ce volume étiré, bénéficiant néanmoins d’une hauteur sous faîtage appréciable (6 mètres) que l’on a pu insérer un logement de trois pièces en duplex, avec cuisine et séjour en partie basse et deux chambres en partie haute.
Travaillé dans sa longueur et sa hauteur, le projet préserve les grandes dimensions du volume initial : le premier niveau est un espace traversant qui se développe sur toute sa longueur où se succèdent cuisine, entrée et séjour; le second comprend deux chambres qui apparaissent comme deux boîtes posées sur les poutres métalliques transversales qui font la liaison entre les deux murs principaux.
La hauteur de 6 m se retrouve en zone centrale, au-dessus de l’entrée, grâce au plancher de verre du palier des chambres. Celui-ci conduit également une lumière zénithale, captée en toiture, qui irrigue les deux niveaux.
Ce mouvement vertical est accompagné par la bibliothèque double hauteur en médium derrière laquelle se cachent sanitaires, vestiaires et salle de bain.
La hauteur de 6 m se retrouve en zone centrale, au-dessus de l’entrée, grâce au plancher de verre du palier des chambres. Celui-ci conduit également une lumière zénithale, captée en toiture, qui irrigue les deux niveaux.
Ce mouvement vertical est accompagné par la bibliothèque double hauteur en médium derrière laquelle se cachent sanitaires, vestiaires et salle de bain.
Réhabilitation d’une ancienne grange
Lieu
Rue du Journans, Segny 01170
Infos
Maîtrise d’ouvrage : privée
Budget : 150 000 € ht
SU : 200 m2