Portfolio
Insertion
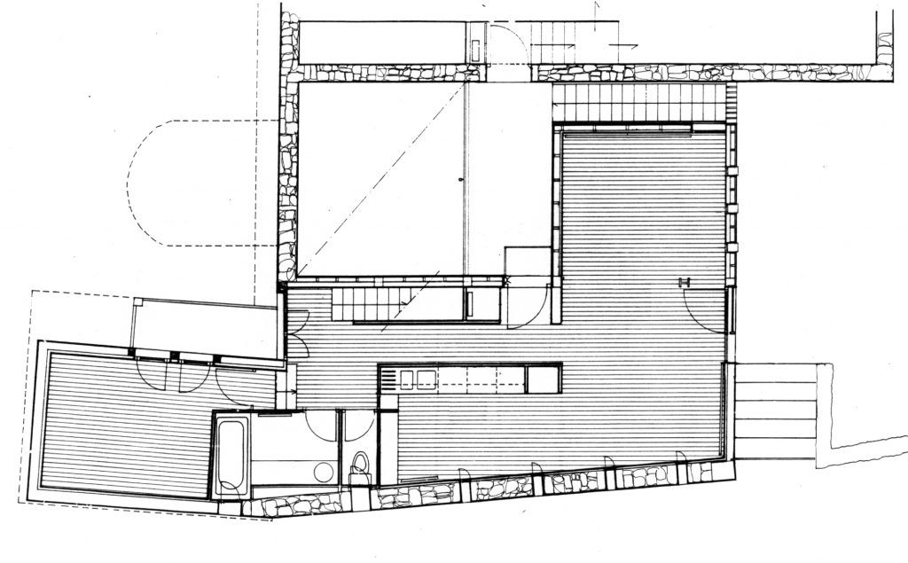
Situé dans une ferme du Pays de Gex à Segny (Ain), ce projet s’est appuyé sur la volonté de requalification d’un ensemble de bâtiments hétéroclites.
Le bâtiment exprime l’insertion entre deux structures préexistantes : le mur qui longe la rue et celui du corps de ferme, que deux poutres d’acier liaisonnent avec un remplissage de béton, bois et verre.
Un commerce et un logement s’insèrent dans l’espace dégagé entre les murs de la ferme; un passage piéton créé au rez-de-chaussée constitue l’axe à partir duquel s’organisent les différents espaces, telles la nouvelle et l’ancienne cour de ferme.
Le bâtiment exprime l’insertion entre deux structures préexistantes : le mur qui longe la rue et celui du corps de ferme, que deux poutres d’acier liaisonnent avec un remplissage de béton, bois et verre.
Un commerce et un logement s’insèrent dans l’espace dégagé entre les murs de la ferme; un passage piéton créé au rez-de-chaussée constitue l’axe à partir duquel s’organisent les différents espaces, telles la nouvelle et l’ancienne cour de ferme.
Le logement, situé à l’étage, est desservi par un escalier métallique extérieur.
Différents types de percements permettent de jouer avec les vues et la lumière.
Différents types de percements permettent de jouer avec les vues et la lumière.
Réhabilitation d’une grange pour la création d’un logement et un commerce
Lieu
Rue du vieux bourg, Segny 01170
Infos
Maîtrise d’ouvrage : privée
Budget : 250 000 € ht
SU : 220 m2