Immeuble allée Verte – Paris XI°

Dualité

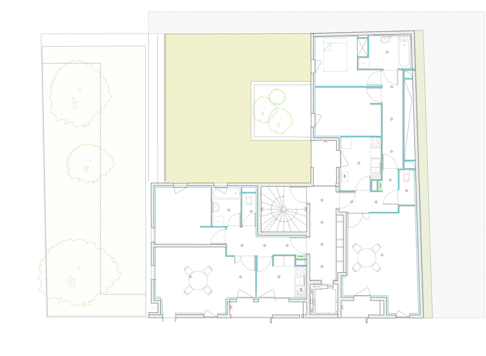
Situé dans le onzième arrondissement à Paris l’immeuble de l’Allée Verte superpose le programme d’une halte-garderie de 25 places à celui de six logements sociaux.
Dans ce quartier proche de la Bastille, l’architecture faubourienne cohabite tant bien que mal avec des opérations immobilières plus récentes.
L’immeuble de l’allée Verte s’inscrit dans cet environnement par un jeu simple des volumes et des matériaux.
La dualité de son programme est exprimée par la superposition de deux entités clairement identifiables : les façades enduites et les panneaux verriers des logements surplombent le volume en bois de la halte-garderie.
La présence du jardin de la halte-garderie, implique une contrainte importante : pour une raison de sécurité, les fenêtres des logements ne doivent pas surplomber cet espace dédié aux enfants.
Posés sur le socle de la halte-garderie, les logements s’organisent en L autour d’une terrasse végétalisée.
Une double orientation est ainsi offerte à chaque logement entre rue et terrasse plantée.
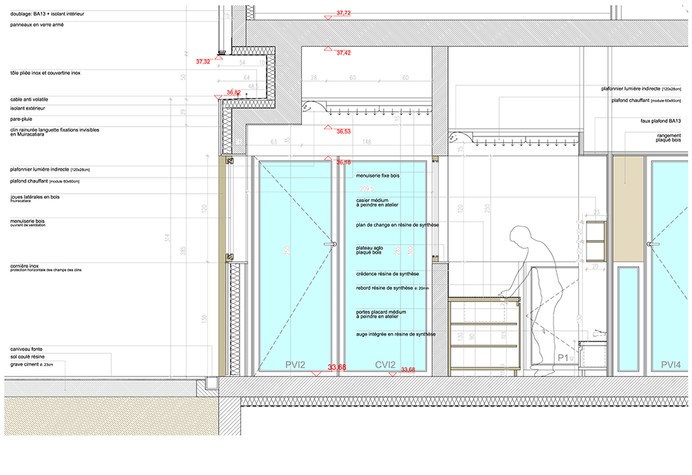
Dominant le jardin, la façade en panneaux verriers fixes, diffuse la lumière naturelle à l’intérieur des logements.
La façade sur l‘Allée Verte, revêtue d’un enduit clair, est animée de façon aléatoire par les baies, les loggias et les bow-windows.
Autour de la terrasse plantée, les panneaux d’eternit, posés en écailles, créent un jeu d’ombre sur les façades. Sous cette peau, des volets de couleur coulissent, offrant des variations, au gré de l’occupation des habitants.
La halte-garderie est organisée autour d’un patio central. La simplicité des volumes et des lignes, les proportions adaptées à la vie et la vision des enfants, offrent un cadre serein, chaleureux, évitant à dessein toute connotation « puérile ».
Dans les étages, la lumière naturelle baigne l’intérieur du bâtiment, dans les logements comme dans les parties communes. Chaque cuisine bénéficie d’une loggia, offrant une extension visuelle et une qualité de vie quotidienne.
Aux derniers niveaux (3 et 4ème étage) deux duplexs s’ouvrent sur de larges terrasses ensoleillées qui dominent le paysage des toits parisiens.

6 logements sociaux et une halte-garderie de 25 places

Lieu
1, allée verte, Paris 75011

Equipe
Collaborateur : Emilien Robin
BET : CE Ingénierie, Flugeclim
Economiste : François Gandon

Informations complémentaires
Maître d’ouvrage : Ville de Paris (DFPE), SGIM
SU : 710 m2
Montant des travaux : 1 733 659 € ht
Démarche HQE, label Qualitel, certifications H et E

Photos : Daniel Osso