Immeuble boulevard Davout – Paris XX°

30 km de honte

Le long du boulevard Davout, à quelques encablures de la Porte de Bagnolet, l’îlot compris entre la caserne de gendarmerie et le début des HBM rejoignant la porte de Montreuil, est resté libre depuis le démantèlement des fortifications.
La présence des HBM au sud nous semble être un point essentiel pour amorcer la densification de cet îlot. Souvent décriés, les HBM et leur architecture de brique « ceinturant Paris de 30 kilomètres de honte » suivant l’expression de Le Corbusier, représentent cependant une image forte dans le développement de Paris. Composer avec cette présence permet de raccorder cet îlot à la ville.
Cette situation urbaine, des contraintes d’échelles variées ont façonné la forme du projet. Le rapport au boulevard nécessite force et rectitude alors que l’ouverture sur le paysage lointain permet le déploiement de formes plus libres et plus légères.
Identifiées par la brique et le métal, deux logiques, deux identités s’imbriquent et se répondrent.
La brique se développe sur l’ensemble du bâtiment pour l’envelopper d’une première peau protectrice. En contrepoint, le cœur du bâtiment se développe plus librement.
Habillé de ventelles d’aluminium, le plan des façades s’éloigne progressivement du nez des balcons, créant un jeu d’ombres et de lumières. Sous cet habit de métal sensible aux moindres variations, des volets coulissent, animant la façade au gré de l’occupation des habitants.
Les dix étages de notre bâtiment, commandés par la densité du programme, demandent un traitement attentif de l’angle Sud-Ouest.
Cet angle et son rapport avec le square Serpolet, sont exprimés par l’interpénétration des deux volumes, de la brique et du métal.
A cet endroit, le retrait du bâtiment permet d’ajuster le gabarit à l’échelle du square. Le pignon aveugle, animé par un jeu de moucharabiehs, se baisse au niveau des six étages des HBM.
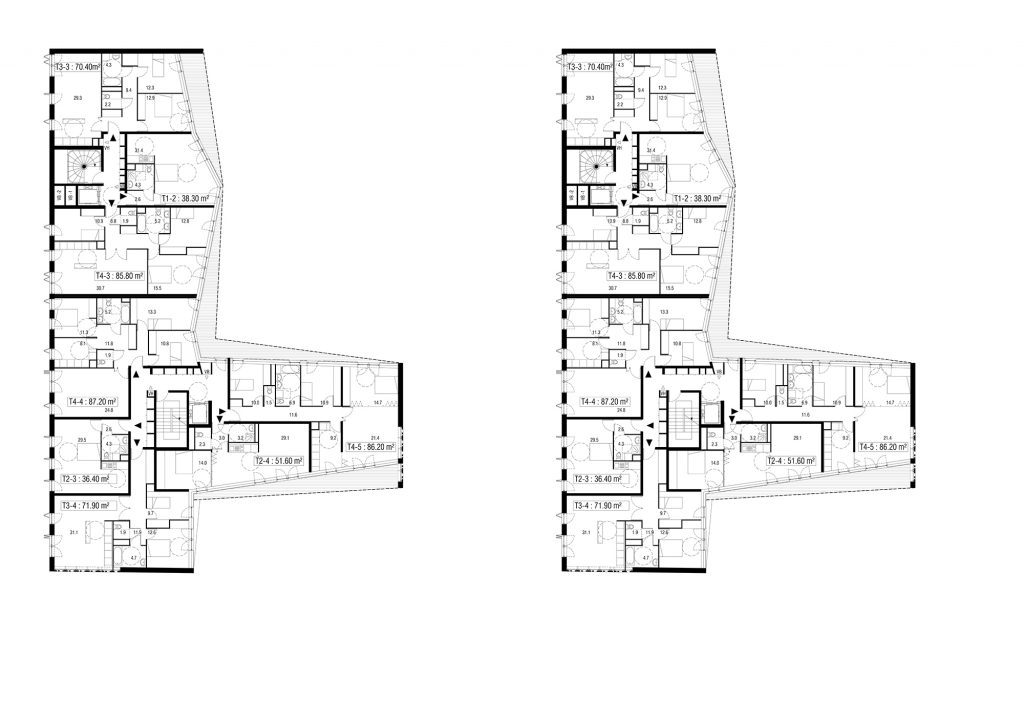
Les baies des logements répondent aux besoins de lumière naturelle commandés par un bâtiment BBC.
Sur le boulevard Davout, le jeu aléatoire des percements, associé aux volets métalliques, anime la façade de brique. Se distinguant de ces ouvertures par leurs proportions, trois grands cadres vitrés prédominent et illuminent la façade. Ils signalent la présence des trois entités du programme : logements, structure d’accueil de la petite enfance et locaux associatifs.
La nuit, les pignons et les murs de clôture en brique sont éclairés de l’intérieur comme une lanterne. Les moucharabiehs s’animent et composent des façades changeantes au gré de l’utilisation des locaux.

Construction de 70 logements, 1 crèche de 35 berceaux et locaux associatifs

Lieu
134, boulevard Davout, Paris 75020

Equipe
Collaborateur : Mathieu Holdrinet
BET : CE construction, Synapse construction
Economiste : Cosinus

Infos
Maîtrise d’ouvrage : RIVP
Montant des travaux : 12 600 000 € ht
SHON : 6610 m2
Certifications H et E profil A option performance 50 kWep/m2 an SHON, plan climat de Paris